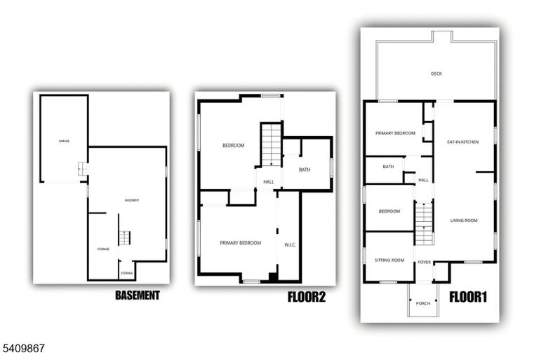
Exceptional opportunity to purchase a charming single-family home together with a separate buildable lot located directly behind the property - a rare and valuable offering in this neighborhood. This unique package delivers both immediate livability and long-term development potential. The home features appealing living spaces, abundant natural light, and a warm, welcoming atmosphere throughout. With classic curb appeal, a private driveway, and a desirable residential setting, the property is ideal for homeowners, investors, and developers alike. The additional rear parcel provides outstanding potential for future development, expansion, or new construction, creating a truly versatile investment opportunity. Whether living in the home while planning future development, expanding the property footprint, or holding for long-term appreciation, this offering delivers flexibility, value, and rare upside.
129 Pake St, Nutley Twp. NJ 07110-3023
Property City
Nutley Twp.
Property Price
$750,000
Rooms
7
Bedrooms
4
Bathrooms
2.00
Year Built
1947
Tax Annual Amount
$10249
TaxYear (*text)
2024
BathroomsFull
2
Roof (*text)
Asphalt Shingle
MLS Status
Active
MLS #
4008641
Yearly Tax Rate
2.632
Year Built (*numeric)
1947
Basement
Yes
Roofing (*text)
Asphalt Shingle
Basement (*text)
Yes
Cooling (*text)
Central Air
FireplacesTotal (*text)
0
GarageSpaces
1
Heating
1 Unit, Forced Hot Air
Lot Size Dimensions
51X99 IRR
Data import from
GSMLS