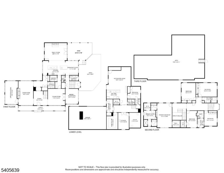
One of kind magazine worthy Colonial, ideally located on .59 acres of property with huge mature hedges for privacy and exquisite gardens on most prestigious street in Short Hills, walking distance to Hartshorn Elementary School, offering privacy and open floor plan with high end & custom finishes. Breathtaking home features grand 2 story entry with Living Room with beamed ceiling and wood-burning fireplace, Library with floor to ceiling windows, elegant Dining room perfect for entertaining with butler's pantry and French doors to Den/Sunroom with floor to ceiling windows, stunning new gourmet eat-in Kitchen with top of the line Subzero refrigerator / freezer, Dacor 6 burner gas range and dishwasher appliances, 2 center islands & breakfast bar with separate breakfast area, totally open to Family room with wood-burning fireplace, wainscoting on vaulted ceiling, French doors open to beautiful deck with portico and gorgeous property. 2nd level features luxurious Primary Suite with walk-in closets, gas fireplace & dressing area. 2 new 5 star spa-like Primary Baths with soaking tub, stall shower & Toto washlet. 4 additional bedrooms with ample closets & two additional bathrooms. Beautifully finished Lower level with recreation room/media room, kitchenette with refrigerator, dishwasher and microwave, and bedroom, full bath, exercise room, jaw dropping 2,500 capacity temperature controlled wine cellar & access to 3 car garage. Enjoy the ultimate Short Hills lifestyle!! Low Taxes!!
2 Robert Dr, Millburn Twp. NJ 07078-1507
Property Price
$3,800,000
Rooms
16
Bedrooms
6
Bathrooms
4.20
Year Built
2002
Tax Annual Amount
$44595
TaxYear (*text)
2024
BathroomsFull
4
Roof (*text)
Asphalt Shingle
Floors No
Carpeting, Tile, Wood
Lot Size Area
0.59
MLS Status
Active
MLS #
4010612
Yearly Tax Rate
1.982
Year Built (*numeric)
2002
Basement
Yes
Roofing (*text)
Asphalt Shingle
Basement (*text)
Yes
Cooling (*text)
3 Units, Central Air, Multi-Zone Cooling
FireplacesTotal (*text)
3
GarageSpaces
3
Heating
3 Units, Forced Hot Air, Multi-Zone
Lot Size Dimensions
IRREG .5938 AC
Data import from
GSMLS