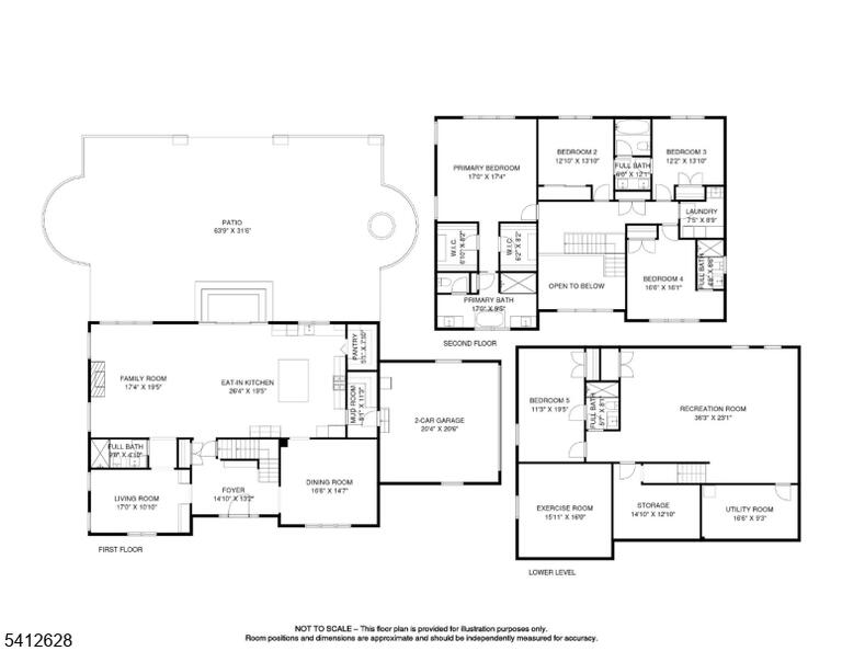
THE MOST STUNNING 2022 NEW CONSTRUCTION - Exceptionally Elevated as the DESIGNER's OWN home.The location is just as impressive - situated on .6 Acre Lot at the end of a QUIET Cul-De-Sac in Most Desirable East-West-North neighborhood. The CHIC Custom SMART Home boasts over 4700 sq ft of FINISHED Living Space on 3 Levels incl Finished Basement. Flooded with NATURAL LIGHT, GRAND FOYER welcomes with 19ft HIGH CEILING flanked by Living Room / Guest Bedroom & Formal Dining Room. BRIGHT Family Room w/Gas Fireplace, lit up by A WALL of WINDOWS, is Open to the Gourmet Eat-In Kitchen W/ 8 Foot QUARTZ ISLAND, Designer SS Appliances & a Dream Walk-in Pantry. FRENCH Sliding Doors spill out to a Large PAVER Patio and a POOLABLE Level FENCED-IN Backyard.Second floor features a luxurious Primary w/ 2 Large Walk-in OUTFITTED Closets, Spa-like Bath with Jetted Shower, Soaking Tub & Dual Vanities. Generous sized Bedrooms 2 & 3 share a Jack & Jill Bath and 4th Bedroom is En-Suite. Laundry Room completes 2nd floor. Fully Finished Lower Level is The PERFECT Space w/ Large Recreation Area, Legal 5th Bedroom, Full Bath, and Media/Gym Room. Home features 9ft Ceilings, Hard Wood Floors on BOTH levels, Custom Coffered Ceilings, Moldings, Irrigation system in Front and Back. MOVE RIGHT IN & ENJOY LIFE in PRESTIGIOUS LIVINGSTON! Bring your sunglasses!,
31 North Dr, Livingston Twp. NJ 07039-3508
Property Price
$2,650,000
Rooms
11
Bedrooms
5
Bathrooms
5.00
Year Built
2022
Tax Annual Amount
$35060
TaxYear (*text)
2025
BathroomsFull
5
Roof (*text)
Asphalt Shingle
Floors No
Carpeting, Tile, Wood
Lot Size Area
0.61
PetsAllowed (*text)
Yes
MLS Status
Active
MLS #
4011364
Yearly Tax Rate
2.446
Year Built (*numeric)
2022
Basement
Yes
Roofing (*text)
Asphalt Shingle
Basement (*text)
Yes
Cooling (*text)
2 Units, Central Air, Multi-Zone Cooling
FireplacesTotal (*text)
1
GarageSpaces
2
Heating
2 Units, Forced Hot Air, Multi-Zone
Lot Size Dimensions
26386 SF
Data import from
GSMLS