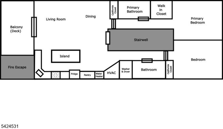
Expansive & stunningly renovated 2 bed/2 bath 1373 sqft home with balcony! The newly remodeled chef's kitchen features custom walnut & white cabinetry, white quartz countertops and a huge island. The spacious living and dining area is filled with light from French doors leading to your very own 152sqft balcony. The master bedroom has a custom California walk-in closet and an ensuite bathroom. There is also a large second bedroom and second bath with jacuzzi tub. Also included are gleaming oak hardwood floors, in-unit washer/dryer, central AC, recessed lighting, Casablanca ceiling fans, electronic blinds, video intercom, Bose surround sound system, and a private storage room. Conveniently located just steps from a municipal parking garage, bus to NYC, and Path train as well as shops, restaurants, and everything downtown Hoboken has to offer.
315 Grand St, Hoboken City NJ 07030-2793
Property City
Hoboken City
Property Price
$1,069,000
Rooms
7
Bedrooms
2
Bathrooms
2.00
Year Built
1901
Tax Annual Amount
$10198
TaxYear (*text)
2025
BathroomsFull
2
Roof (*text)
See Remarks
Floors No
Wood
Lot Size Area
2.51
PetsAllowed (*text)
Yes
MLS Status
Active
MLS #
4021164
Yearly Tax Rate
1.805
Year Built (*numeric)
1901
Basement
No
Roofing (*text)
See Remarks
AssociationFee
700
Basement (*text)
No
Cooling (*text)
Central Air
FireplacesTotal (*text)
0
GarageSpaces
0
Heating
Forced Hot Air
Lot Size Dimensions
.2514-1373 SF
Data import from
GSMLS