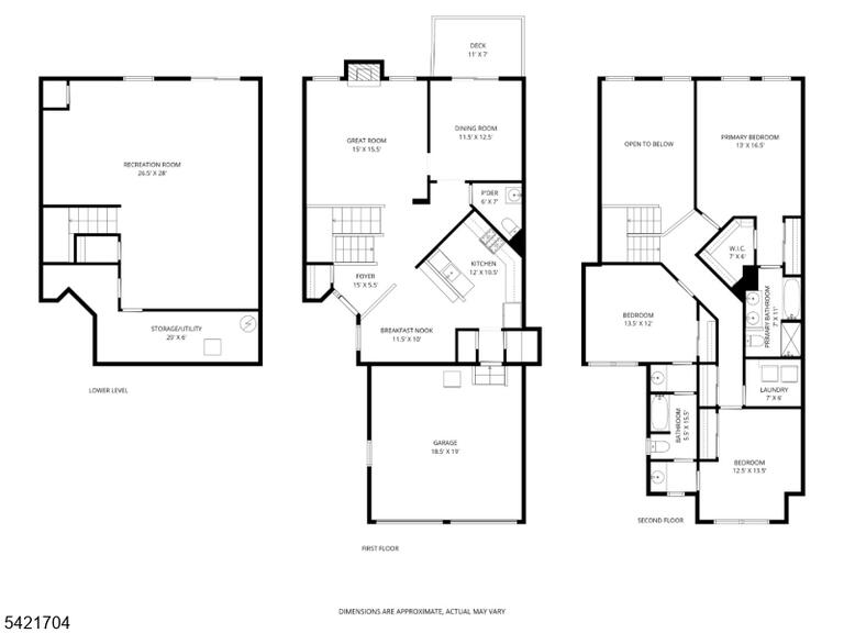
Welcome to The Forge, where everyday living feels like a getaway. This beautifully updated townhome offers the perfect blend of space, style, & convenience in a sought-after, amenity-rich community. Freshly painted and move-in ready, this home features new hardwood floors on the second level, new carpeting on the lower level, & new kitchen appliances. The light-filled main living area is anchored by a dramatic two-story family room with accent moldings, a gas fireplace, and new light fixtures throughout. The main level offers a seamless layout with an eat-in kitchen, dining area w/ deck access for easy indoor/outdoor living, powder room, & direct entry from the 2-car garage, freshly painted & epoxy floor & equipped with a 2nd refrigerator. Upstairs, you'll find 3 spacious bedrooms and 2 full baths, including a primary suite with a walk-in closet and en-suite bath featuring a double vanity, soaking tub, and separate shower. The laundry room is ideally located on this level with new cabinetry and a drying bar. The ground level provides a versatile bonus space w/ walk-out access, perfect for a recreation room, home office, gym, or playroom. Enjoy resort-style living at The Forges with access to a beautifully appointed clubhouse, fitness center, outdoor pool, and tennis courts. Ideally located just minutes from downtown Denville and directly across Route 10 from The Shoppes at Union Hill, offering convenient access to shopping, dining, and everyday essentials.
64 Henning Ter, Denville Twp. NJ 07834-3716
Property City
Denville Twp.
Rooms
8
Bedrooms
3
Bathrooms
2.10
Year Built
2004
BathroomsFull
2
Floors No
Carpeting, Tile, Wood
PetsAllowed (*text)
No
MLS Status
Active
MLS #
4020210
Year Built (*numeric)
2004
Basement
Yes
Days On Market
0
Basement (*text)
Yes
Cooling (*text)
1 Unit, Ceiling Fan, Central Air
FireplacesTotal (*text)
1
GarageSpaces
2
Heating
1 Unit, Forced Hot Air
Lot Size Dimensions
3.01
Data import from
GSMLS