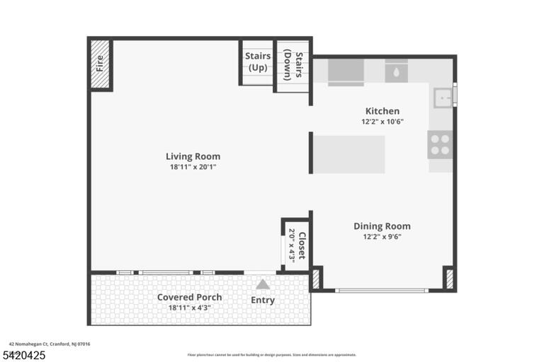
Welcome to this bright, well-maintained home in one of Cranford's most sought-after neighborhoods. A charming front porch leads into a sun-filled living room with soaring ceilings and great flow for everyday living and entertaining.The kitchen features white cabinetry and granite countertops and opens to the main living space. Just a few steps down, the spacious family room with a wood-burning fireplace offers direct access to a private patio and flat backyard with a built-in sprinkler system. This level also includes a laundry room, office (or optional 4th bedroom), and access to the attached garage.Upstairs are three bedrooms, including a primary suite, with hardwood floors throughout. Additional highlights include a 2-car wide driveway and excellent storage with attic and crawl space. Major recent updates include a new furnace, central air, and roof.Ideally located near Nomahegan Park, Cranford's award-winning downtown, top-rated schools, and NYC transportation.
42 Nomahegan Ct, Cranford Twp. NJ 07016-1514
Property City
Cranford Twp.
Property Price
$799,000
Rooms
9
Bedrooms
3
Bathrooms
2.10
Year Built
1955
Tax Annual Amount
$14343
TaxYear (*text)
2025
BathroomsFull
2
Roof (*text)
Asphalt Shingle
Floors No
Wood
Lot Size Area
0.16
MLS Status
Active
MLS #
4018518
Yearly Tax Rate
7.248
Year Built (*numeric)
1955
Basement
Yes
Roofing (*text)
Asphalt Shingle
Basement (*text)
Yes
Cooling (*text)
1 Unit, Central Air
FireplacesTotal (*text)
2
GarageSpaces
1
Heating
Baseboard - Cast Iron, Baseboard - Hotwater
Lot Size Dimensions
7000 SF
Data import from
GSMLS