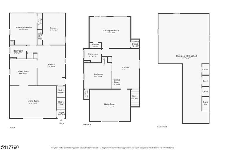
A fantastic opportunity to own an income producing property in a great location in Bloomfield! This wonderfully kept and well maintained 2 family home is move-in ready! The first-floor unit has 2 spacious bedrooms, a large cozy living room, formal dining room and eat-in kitchen with private access to a full unfinished basement with laundry and plenty of storage. This unit also exits out to a large deck overlooking a manicured and private rear yard with a second deck/seating area towards the rear of the property. The second floor has been updated with all new flooring and includes 2 generous sized bedrooms, a newer eat-in kitchen with stainless steel appliances, comfortable living room with great natural light and renovated full bath. There is an attic space off this second floor for storage and an in-unit laundry. There are 2 separate private driveways, giving parking for each unit, with also an attached garage. Separate furnaces and electric, new roof, new hot water heater and many more updates make this home a must see! Just seconds from Demarest School, Bloomfield Middle School, Clarks Pond, North Bloomfield Center, NJ Transportation to NYC, and all major highways including the Garden State Parkway. Do not miss your chance to be a landlord and offset your mortgage with rental income or rent both units!
322 Broughton Ave, Bloomfield Twp. NJ 07003-4204
Property City
Bloomfield Twp.
Property Price
$750,000
Bedrooms
4
Year Built
1957
Tax Annual Amount
$12535
TaxYear (*text)
2025
Roof (*text)
Asphalt Shingle
Lot Size Area
0.15
MLS Status
Active
MLS #
4017287
Yearly Tax Rate
3.489
Year Built (*numeric)
1957
Basement
Yes
Roofing (*text)
Asphalt Shingle
Days On Market
13
Basement (*text)
Yes
Cooling (*text)
Wall A/C Unit(s)
GarageSpaces
1
Heating
Radiators - Steam
Lot Size Dimensions
50 X 131
Data import from
GSMLS