6 Mereline Avenue, Avenel NJ 07001

Property City
Avenel
Property Media
Property
Property
Property
Property
Property
Property
Property Price
$829,000
Rooms
7
Bedrooms
4
Bathrooms
3
Tax Annual Amount
$0
MLS Status
Active
MLS #
2608159R
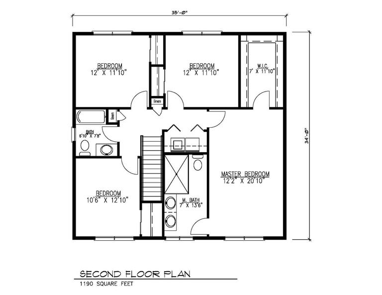
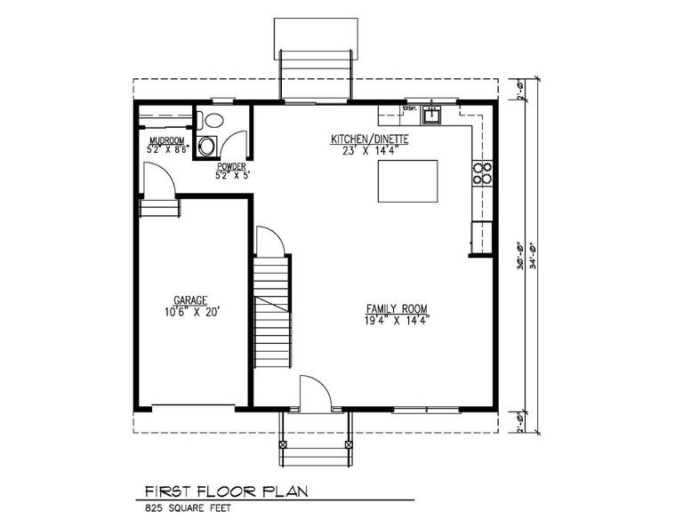
To be built: Charming Colonial Home Step into your dream home with this charming to be built Colonial, featuring an open concept first floor perfect for modern living. The spacious eat-in kitchen boasts elegant granite countertops, 42 cabinets, and sleek stainless steel appliances. Enjoy the warmth and beauty of hardwood flooring throughout the first floor, second floor and a beautifully finished wooden staircase. Upstairs, you'll find four inviting bedrooms and a convenient laundry area. There's still time to collaborate with the builder to select your preferred colors and styles, ensuring the home is truly yours. The property includes a thoughtful landscape package and comes with a 10-year Homeowner Warranty.
Days On Market
5
AssociationFee
0
AssociationFee2
0
CarportSpaces
0
GarageSpaces
1
Lot Size Dimensions
70.00 x 60.00
Property Location

40.5740423, -74.2692521

Geo Lat Long Proximity (field_pro_lat_long)
Units: Miles
Origin Coordinates
Value in decimal degrees. Use dot (.) as decimal separator.
buynjhome Jagdeep

Jagdeep Singh

+1(848)242-6762