Property Price
              $10,000
          Bathrooms
              0
          Tax Annual Amount
              $29820
          Lot Size Area
              0.1435
          MLS Status
              Active
          MLS #
              2606493R
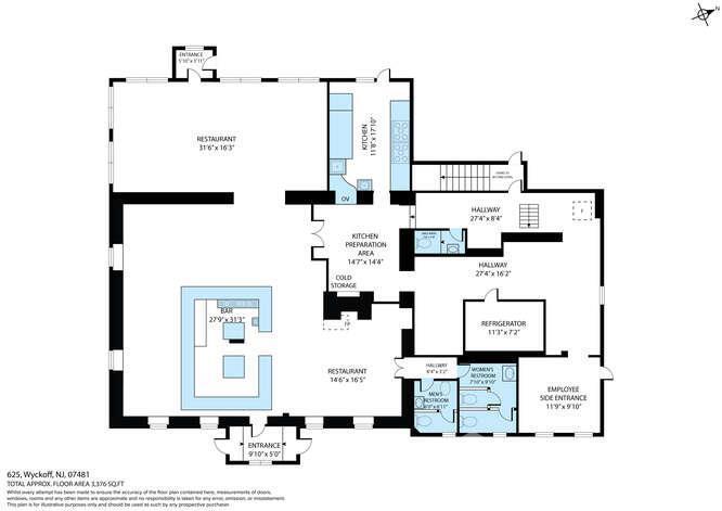
          For Lease - The Former Brownstone Inn, Wyckoff, NJ...A One-of-a-Kind Opportunity to Create Your Own Legacy in a Historic Setting. Built in 1757, this iconic property stands as one of Wyckoff's most recognizable landmarks. For generations, it served as a beloved local pub and restaurant, offering warmth, hospitality, and timeless character. Today, it presents a rare chance to write its next chapteran opportunity to combine historic charm with modern potential. The property offers approximately 3,376 sq. ft. of flexible space that can be renovated or reimagined for a variety of commercial, retail, or professional uses. With multiple entry points and an open layout (currently seating 109 guests), it provides a strong foundation for a restaurant, caf, boutique office, creative studio, or wellness concept. A private parking lot with 27 spaces ensures convenience for employees and visitors. Located at the high-visibility intersection of Wyckoff and Franklin Avenues, the site benefits from exceptional accessibility and exposure, with over 23,000 vehicles passing daily. The building's historic faade and central location offer unmatched branding potential for any business seeking a distinctive presence in the heart of Wyckoff. For those looking to revive a landmark, establish a boutique practice, or create a signature destination, 625 Wyckoff Avenue offers the perfect setting to bring your vision to life. Floor plans, zoning details, and lease terms available upon request.
      
  Days On Market
              6
          Lot Size Dimensions
              125.00 x 0.00
           
   
   
   
   
   
   
   
   
   
   
   
   
   
   
   
   
   
   
   
  