Property Price
              $548,850
          Rooms
              7
          Bedrooms
              3
          Bathrooms
              2
          Tax Annual Amount
              $6450
          Lot Size Area
              0.0918
          MLS Status
              Active
          MLS #
              2606349R
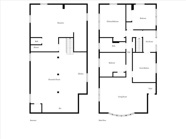
          Welcome Home to this charming and well-maintained ranch home which has been lovingly cared for by its original owner and reflects true pride of ownership. This three-bedroom two bath ranch is located in this desirable neighborhood of South River. Stepping inside this home, you will find natural light streaming through the front bow window and doors. The main level holds a spacious living room, kitchen, 3 bedrooms, the main bath and a cozy sun porch. The oversized Basement is very spacious with a large bar and summer kitchen.  Oversized two-car detached garage with loft offers a work station and plenty of storage on both levels. Just minutes from shopping malls, restaurants, and parks, with easy access to NJ turnpike and major highways.  This home has been carefully maintained to elevate the everyday living experience by its one and only owner. This is a must see which combines comfort, charm and convenience!
      
  Days On Market
              7
          AssociationFee
              0
          AssociationFee2
              0
          CarportSpaces
              0
          GarageSpaces
              2
          Lot Size Dimensions
              100.00 x 0.00
           
   
   
   
   
   
   
   
   
   
   
   
   
   
   
   
   
  