Property Price
              $599,000
          Rooms
              7
          Bedrooms
              3
          Bathrooms
              2
          Tax Annual Amount
              $10494
          MLS Status
              Active
          MLS #
              2605642R
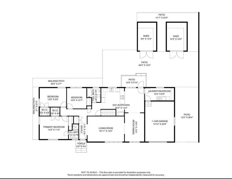
          One-floor living at its best! Move right into this meticulously maintained 3 Bedroom, 2 Full Bath brick Ranch situated on a 100 x 100 lot in Parlin - only the second owner !   Enter via the Foyer into a spacious Living Room and Dining Room, leading to a large Eat-in Kitchen with a separate Dining Area and access to the backyard. The en suite Primary Bedroom offers a walkin closet, while the second bedroom also features a walkin closet. Additional highlights include an ADT Alarm System, hardwood floors & ceiling fans throughout, central air (2019), hot water heater (2022), roof (2004), boiler (2010), and central vacuum.  A convenient Laundry Room includes a washer, dryer, slop sink, & inside access to the freshly painted oversized 1-Car Garage  w/  garage door opener. The full-length unfinished Basement provides a sump pump, French drains, and plenty of space for storage or future customization for a Family Room, Recreation Room, Workshop or work-from-home space. Outside, enjoy the beautifully maintained, fenced-in backyard with a patio, 2 spacious storage sheds, and front and back in-ground sprinkler systems. The extra-long driveway accommodates up to 9 cars, completing this move-in-ready home that shows true pride of ownership. Located close to major highways, shopping, and NYC bus, train, & ferry transportation.  Don't miss out on the opportunity to own a home that offers both comfort & convenience in a prime location !
      
  Days On Market
              20
          AssociationFee
              0
          AssociationFee2
              0
          CarportSpaces
              0
          GarageSpaces
              1
          Lot Size Dimensions
              100.00 x 100.00
           
   
   
   
   
   
   
   
   
   
   
   
   
   
   
   
   
   
   
   
   
   
   
   
   
   
   
   
   
   
   
   
   
   
   
   
   
   
   
   
  