Property Price
              $3,250
          Rooms
              6
          Bedrooms
              3
          Bathrooms
              2
          Lot Size Area
              0.23
          MLS Status
              Active
          MLS #
              2604885R
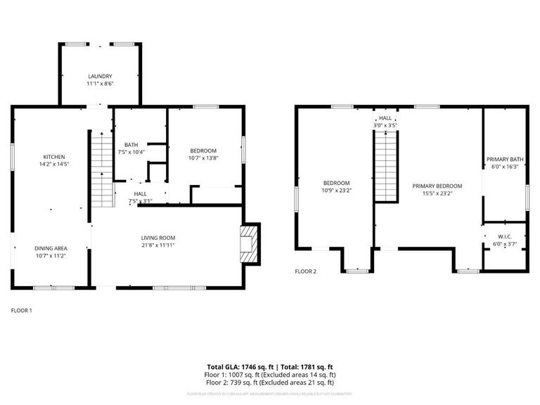
          Live in the heart of the Garden State! Enter this newly renovated, semi-furnished home and settle right in. Cook together with all stainless steel appliances in the newly renovated eat-in kitchen. Enjoy the outdoors from one of two porches. Throw a load of laundry on in your main-level laundry room, then curl up on the provided sofa in the spacious living room. The main level also includes the first of three large bedrooms, and a full bathroom with shower/tub combo. Retreat upstairs to find two more bedrooms. The main bedroom suite includes a cedar closet and full bathroom with french doors, shower, and working, jetted tub. Both bedrooms overlook the small, private yard which backs up to a private lot.   Detached garage available for use.  Well water and new private septic tank - no water or sewer bills!  Option to Purchase welcome.
      
  Days On Market
              28
          AssociationFee
              0
          AssociationFee2
              0
          CarportSpaces
              0
          GarageSpaces
              1
          Lease Term
              12 Months,Option to Purchase
          Lot Size Dimensions
              100.00 x 100.00
           
   
   
   
   
   
   
   
   
   
   
   
   
   
   
   
   
   
   
   
   
   
   
   
   
   
   
   
   
  