Property Price
              $615,000
          Rooms
              5
          Bedrooms
              2
          Bathrooms
              3
          Tax Annual Amount
              $11003
          MLS Status
              Active
          MLS #
              2606441R
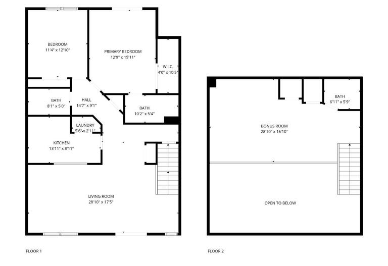
          Welcome to this two bedroom, three full bath townhouse in Central Square Park. This beautiful townhouse combines space, comfort & convenience! Your unique floor plan gives you generous living and dining space with fantastic ceiling height and a galley kitchen with stainless steel appliances, a gigantic breakfast bar and hidden stackable laundry. Master bedroom with vaulted ceilings, flooded with natural light from the skylight and sliding doors, deck and an en suite updated bath with two sinks. Spacious second bedroom and full bath as well. Don't miss your private outdoor deck, an oasis for relaxation, before you head upstairs to your bonus loft with full bath, perfect for a home office, media room and/or home gym! Water heater, furnace and a/c, approx 5yo. Ample parking, steps to Downtown Metuchen, NYC train and Whole Foods, a premier location surrounded by many shops and restaurants await you.
      
  Days On Market
              6
          AssociationFee
              0
          AssociationFee2
              0
          CarportSpaces
              0
          GarageSpaces
              0
          Lot Size Dimensions
              0.00 x 0.00
           
   
   
   
   
   
   
   
   
   
   
   
   
   
   
   
   
   
   
   
   
   
   
   
   
   
   
   
   
   
  