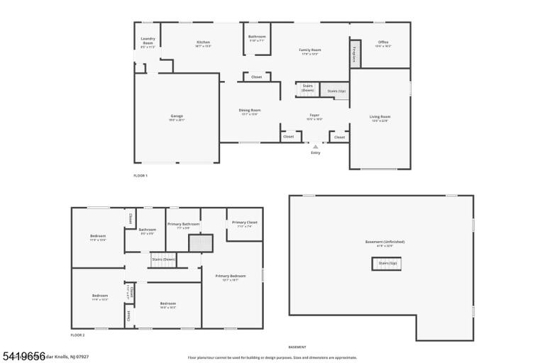
LOCATION, LOCATION, LOCATION! Homes on this quiet cul-de-sac rarely come on the market. This well-maintained colonial offers 4 BR, 2.5 BA, and timeless charm, starting with a welcoming lemonade porch & large driveway. Set on 0.59 acres, the fully fenced-in backyard provides exceptional space with a large deck, and endless potential for entertaining, play, or relaxing outdoors. Step inside to an inviting foyer with 2 coat closets, a formal dining rm on the left, and a large living rm (where piano is) on the right. Hardwood floors run throughout most of the 1st & 2nd levels. The eat-in kitchen features a breakfast ara & glass doors leading to a large deck. Just off the kitchen is a laundry rm with washer/dryer, sink, and wall hooks for coats & jackets, plus a side entrance and direct access to the 2-car garage. The Family Rm with a brick wood-burning fireplace opens to the patio, with a private OFFICE tucked behind. Upstairs offers 4 generously sized bedrooms, including a primary suite with a large closet & vanity, plus a hall bath with double sinks. Unfinished basement with French drain clean and ready for a gym, rec space, or more. Located in Hanover Twp low taxes, top-rated schools, near major highways, about 3 miles to Morristown, with Whole Foods, Trader Joe's, Wegmans & NYC trains nearby. Updates: BRAND NEW BOILER (March 2026), fireplace cleaned (2026), hot water heater (2023), central air (2020), 2 garage doors/motors (2020), hardwood floors refinished (2018).
4 Gristmill Rd, Hanover Twp. NJ 07927-1202
Property Price
$899,000
Rooms
14
Bedrooms
4
Bathrooms
2.10
Year Built
1977
Tax Annual Amount
$11911
TaxYear (*text)
2025
BathroomsFull
2
Roof (*text)
Asphalt Shingle
Floors No
Tile, Wood
Lot Size Area
0.59
PetsAllowed (*text)
Yes
MLS Status
Active
MLS #
4018485
Yearly Tax Rate
2.052
Year Built (*numeric)
1977
Basement
Yes
Roofing (*text)
Asphalt Shingle
Basement (*text)
Yes
Cooling (*text)
Ceiling Fan, Central Air
FireplacesTotal (*text)
1
GarageSpaces
2
Heating
Baseboard - Hotwater, Multi-Zone
Lot Size Dimensions
.592 AC
Data import from
GSMLS