93 Marion Street, Carteret NJ 07008

Property City
Carteret
Property Media
Property
Property
Property
Property
Property
Property
Property
Property
Property
Property
Property
Property
Property
Property
Property
Property
Property
Property
Property
Property
Property
Property
Property
Property
Property
Property
Property
Property
Property
Property
Property
Property
Property
Property
Property
Property
Property
Property
Property
Property
Property
Property
Property
Property
Property
Property
Property
Property
Property
Property
Property
Property
Property
Property
Property
Property
Property
Property
Property
Property
Property
Property
Property
Property
Property
Property
Property
Property
Property
Property
Property
Property
Property
Property
Property
Property
Property Price
$525,000
Rooms
7
Bedrooms
3
Bathrooms
2
Tax Annual Amount
$6774
Roof (*text)
Asphalt
MLS Status
Active Coming Soon
MLS #
2614839R
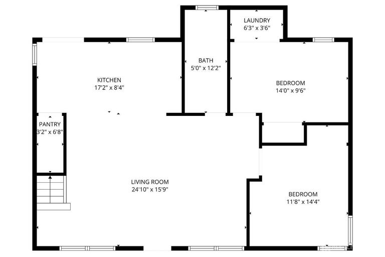
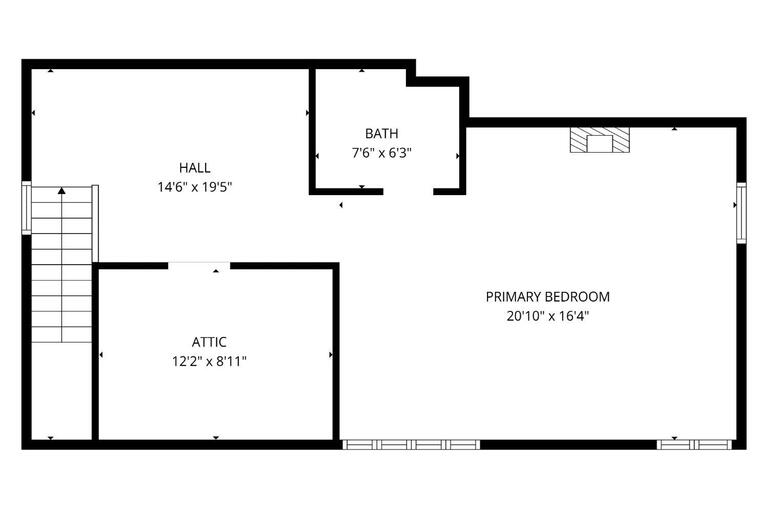
This is a coming soon listing and cannot be shown until Saturday, 05/02/2026. Welcome to this beautifully maintained 3-bedroom, 1.5-bath home located in one of Carteret's most sought-after neighborhoods. Situated on a 50x100 lot, this turn-key property has been thoughtfully updated throughout, offering both peace of mind and modern comfort. The first floor is sure to impress, featuring two spacious bedrooms, a full bathroom, and an open-concept kitchen complete with modern cabinetry, stainless steel appliances, and a large breakfast bar that flows seamlessly into the living area, perfect for everyday living and entertaining. With a generous footprint, this layout could allow for multi- generational living. Upstairs, you'll find a bright and oversized primary suite featuring a private half bath and ample space for a home office, reading nook, or flex area. Step outside to a large, private backyard highlighted by a beautifully designed fire pit area perfect for morning coffee or relaxing evenings at home.
Roofing (*text)
Asphalt
Days On Market
2
AssociationFee
0
AssociationFee2
0
CarportSpaces
0
GarageSpaces
0
Lot Size Dimensions
100.00 x 50.00
Property Location

40.5777663, -74.2333087

Geo Lat Long Proximity (field_pro_lat_long)
Units: Miles
Origin Coordinates
Value in decimal degrees. Use dot (.) as decimal separator.
Data import from
CJMLS
buynjhome Jagdeep

Jagdeep Singh

+1(848)242-6762